Renet utilizează fişiere de tip cookie pentru a personaliza și îmbunătăți experiența ta pe Website-ul nostru. Înainte de a continua navigarea pe Website-ul nostru te rugăm să aloci timpul necesar pentru a citi și înțelege conținutul Politicii de Cookie. Prin continuarea navigării pe Website-ul nostru confirmi acceptarea utilizării fişierelor de tip cookie conform Politicii de Cookie.

Spațiu subsol | Vitan Center | 100 mp | Utilitati incluse

Bucuresti, Vitan

1.000€ + TVA
ID: PB18920 36
Reprezentare exclusiva
  • ID:PB18920
  • Nr. camere:3
  • S. utila:100.00 mp
  • S. construita:120.00 mp
  • Comp.:Compartimentat
  • Clasificare:A
  • Etaj:Demisol
  • Regim inaltime:S+P+7
  • Nr. bai:1
  • An constructie:2009
Utilitati
  • Utilitati generale: Curent, Apa, CATV, Fibra optica
  • Sistem incalzire: Centrala imobil
  • Climatizare: Aer conditionat
Finisaje
  • Izolatii exterior: Exterior
  • Pereti: Vopsea lavabila
  • Podele: Gresie
  • Stare: Finisat
Dotari
  • Contorizare: Apometre
  • Mobilat: Nemobilat
  • Imobil: Lift

Cladirea de birouri Vitan Center se află în Piața Vitan, la doar 500m de Piața Alba Iulia și București Mall.Cladirea dispune de fațadă vitrată, recepție, pază 24/24, supraveghere video, sistem antiincendiu, pardoseală flotantă, sistem de climatizare, termopane Schuco și 3 lifturi.

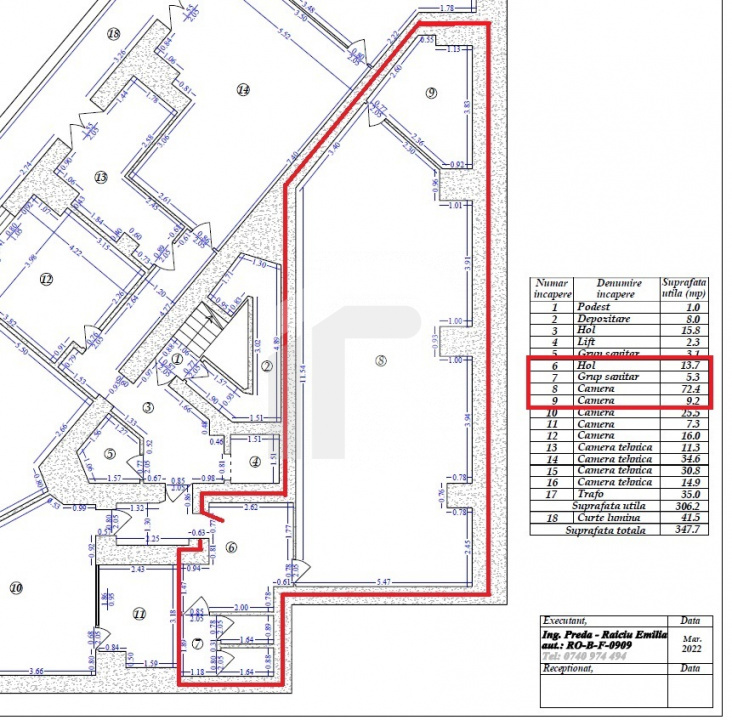
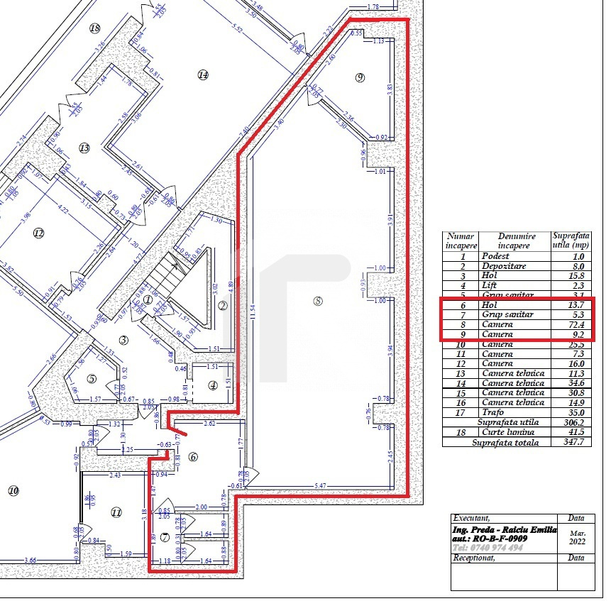
Spațiul se află la subsol, dispune de 100 mp utili si este compartimentat conform schitei atasate.

Pretabil pentru sala de dansuri, showroom, depozitare, sala de kickbox, studio de inregistrare etc.

Inaltimea spatiului in acest moment este de 232 cm dar cu posibilitate de inaltare pana la 282cm.

În prețul chiriei sunt incluse încălzirea și răcirea spațiului și a suprafețelor comune, apa, colectarea gunoiului, dezinsecția, deratizarea, curățenia, paza si recepția, excepție fiind doar curentul (consumul de la becuri și prize) care se achită separat in functie de consum.

Locurile de parcare sunt disponibile prin abonament la ADP la un cost de 20€/lună.

La pretul afisat se adauga TVA.

Pentru orice informații suplimentare mă puteți contacta!

Oferta importata de la agentie colaboratoare

Andrei Jugănaru

Consultant Imobiliar - REALTOR®
Printeaza